Проект «Caprice» в поселке Natural Hill 2
4
4
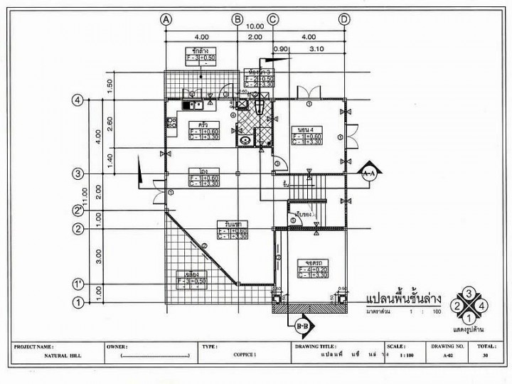
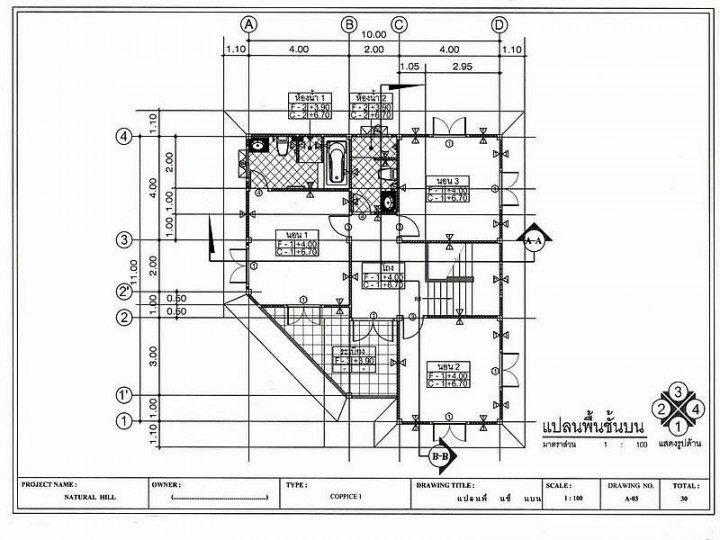
  Проект дома площадью 221 м2 с 4 спальными и 3 ванными комнатами на земельном участке площадью 400 м2. В рамках данного проекта возможно увеличение площади дома за счет площади земельного участка до 257 м2 и строительства дополнительной ванной комнаты без изменения общей стоимости строительства.
В стоимость дома включены ландшафтный дизайн придомовой территории, 1,600 литровый накопительный бак для воды, электронасос и септик, встроенная европейская кухня, воздушные кондиционеры во всех комнатах, нагреватели воды во всех ванных комнатах и на кухне, москитные сетки, дождевые желоба по периметру крыши.
Бассейн размером 7 на 3 метра с джакуззи является дополнительной опцией к этому проекту, стоимость 600,000 бат (включая насос и фильтровое оборудование).
Более подробная информация о поселке Natural Hill.
- Почта: grabrealty8@gmail.com
- Лайн: +66 62 278 8418
- Whatsapp: +66 62 278 8418
- Telegram: @huahinrealty
- Instagram: @grabrealty
Дома Продажа
-
Вилла на продажу в жилом поселке Stewart Park
8,900,000 ฿ -
Вилла класса люкс в балийском стиле
12,500,000 ฿ -
3 спальная вилла по уникальной цене
5,600,000 ฿ -
Двуспальное бунгало в живописной местности
4,700,000 ฿ -
Роскошная вилла в Хуа Хине
37,000,000 ฿
Квартиры Продажа
-
Шикарные апартаменты в элитном комплексе в Хуа Хине
15,000,000 ฿ -
Апартаменты в новом кондо в Као Тао
6,900,000 ฿







